top of page

Remote Coaching Arrival - DXB Airport, Dubai
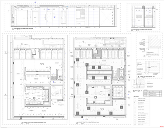
A strategic airport facility designed to optimize passenger flow between bus operations and concourses.
Airports
Infrastructure BIM
Bridge Integration
Client
Cloisall Co. LLC
Role
Infrastructure BIM & Site Workflow Consultant
Website

As-Built & Digital Handover
This infrastructure project at Dubai International Airport (DXB) was designed to handle high-volume passenger transfers through a specialized two-level facility. The project integrates ground-level bus arrival zones with elevated pedestrian bridges that connect directly to Concourse B.
Area
Scope
Interior Fitout LOD 400 & LOD 500
LOD
Infrastructure BIM Models, site coordination workflows, and verified as-built records.

Project Gallery
bottom of page





































