
Expo 2020 Metro Link, Dubai
A specialized project focusing on the digital fabrication and coordination of complex stone cladding for this high-traffic transit hub.
Infrastructure
Specialized BIM
Marble Cladding

Contractor & Construction Support
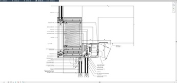
The Expo 2020 Metro Station is the flagship hub of the "Route 2020" expansion. Its design, resembling the wings of an aircraft, serves as a gateway to the Expo site, combining modern transit functionality with world-class interior finishes and intricate marble stonework.
iRivet provided specialized BIM support specifically for the marble cladding and interior finishes. This role involved creating precise 3D models for digital fabrication, ensuring that every piece of stone was cut and installed to exact tolerances within the complex curved station geometry.
Area
Scope
Metal Cladding, Automated Doors, Marble Cladding, Lighting
LOD
LOD 400–500






































